Direkt zum Inhalt
Suche
  • Inserieren
  • eArchiv
  • Abonnieren
  • Kontakt
Français
    • Vorschau
    • Rückschau
  • Marktplatz
  • Über Bulletin.ch
Français
Themen

Energienetze

  • Fachartikel
  • Interview
  • News
  • Meinung

Produktion

  • Fachartikel
  • Interview
  • News
  • Meinung

Energiespeicherung

  • Fachartikel
  • Interview
  • News
  • Meinung

Verbrauch

  • Fachartikel
  • Interview
  • News
  • Meinung

Mobilität

  • Fachartikel
  • Interview
  • News
  • Meinung

ICT

  • Fachartikel
  • Interview
  • News
  • Meinung

Electrosuisse

  • Fachartikel
  • Interview
  • News
  • CES
  • Meinung
Electrosuisse
Verbrauch

Streuströme in Tierhaltungsbetrieben

Vermeidung störender Differenzspannungen in Nutztierställen

Diese Mitteilung beschreibt, wie das Auftreten von Differenzspannungen durch fachmännisch und korrekt ausgeführte Installationen vermieden werden kann. Massnahmen werden vorgestellt, die in neuen und bestehenden landwirtschaftlichen Nutztierställen ergriffen werden müssen, falls störende Differenzspannungen festgestellt werden.

05.12.2018  | 

André Moser

ist Leiter Vollzug NIV & Inspektionen ZH/ZG.

  • ESTI
    8320 Fehraltorf
  • email
,

Daniel Otti

ist Geschäftsführer ESTI.

  • ESTI
    8320 Fehraltorf
  • email

Nutztiere, wie Rinder und Schafe, können bei Berührung von Metallteilen mit dem Maul Differenzspannungen gegen den Boden ausgesetzt sein.[1] Ab einer Differenz-Wechselspannung von 1 V oder bei Gleichspannung ab etwa 1,4 V können Körperströme von 1 bis 2 mA auftreten, welche die Tiere auch wahrnehmen können. Die Tiere greifen diese Spannung in den meisten Fällen zwischen leitfähigen Einrichtungen wie Futterkrippen, Tränken, Melkmaschinen und Betonböden mit blossen Körperteilen ab. Rinder beispielsweise berühren die metallischen Einrichtungen mit dem Maul und stehen gleichzeitig mit den Klauen auf dem nassen, leitfähigen Stallboden oder im Melkstand.

Bei Differenz-Wechselspannungen unter 1 V konnten bei zahlreichen durchgeführten Studien keine Befindlichkeitsstörungen bei Nutztieren festgestellt werden.[1]

Streuströme, die in Schutz- oder Erdleitern und leitfähigen Teilen fliessen, können von den Tieren nicht wahrgenommen werden. Auch lassen sich gesundheitliche Beeinträchtigungen durch solche Streuströme alleine nicht begründen.

Bei korrekter Auslegung und Installation des Potenzialausgleichs gemäss NIN [3] erreichen Differenzspannungen Werte von nur einigen Millivolt. Die Streuströme fliessen in einem solchen korrekt ausgeführten Erdungssystem hauptsächlich durch metallische Leiter ab, z. B. durch verbundene Bewehrungsstähle. Differenz-Wechselspannungen im Volt-Bereich treten nur im Erdschlussfall oder bei einem fehlenden, unterbrochenen oder ungenügenden Potenzialausgleich auf.

Differenz-Wechselspannungen über 1 V können mit einem niederohmigen Multimeter nach EN 61010 festgestellt werden. Die Vorgehensweise wird in [1] beschrieben (siehe auch [9], [10]).

Allgemeine Regeln

Für die Sicherheit von Mensch und Tier ist es zunächst unerlässlich, dass die Installationskontrollen nach NIN [3] periodisch und systematisch nach Erneuerungen und Änderungen an den Niederspannungs-Installationen durchgeführt werden. Dabei werden auch die Erdung und die Wirksamkeit des Potenzialausgleichs geprüft. Der Nachweis der Sicherheit mittels eines Sicherheitsnachweises wird in Art. 35 + 36 NIV [2] gefordert.

Grundlegende Anforderungen an die Installationen für «Landwirtschaftliche Betriebsstätten» ergeben sich aus dem Abschnitt 7.05 der NIN [3].

Abhilfemassnahmen

Besteht der Verdacht auf Installationsmängel oder werden für Tiere abgreifbare Differenz-Wechselspannungen über 1 V festgestellt, so ist zunächst zu überprüfen, ob die Installation gemäss den in Abschnitt 2 genannten Normen (Vorschriften) ausgeführt und kontrolliert worden ist (NIV [2] und NIN [3]). Im Weiteren ist eine Installationskontrolle zu veranlassen. Dabei müssen eine Erdungsmessung und eine Überprüfung der Wirksamkeit des Potenzialausgleichs im Bereich, wo sich die Tiere aufhalten, durchgeführt werden.

Die Inhaber einer Installationsbewilligung und einer Kontrollbewilligung sind abrufbar auf:
verzeichnisse.esti.ch/de/aikb.

Wird festgestellt, dass alle Installationen normgerecht ausgeführt worden sind und die Installationskontrolle keine eindeutigen Resultate liefert, so ist die Ursache durch eine kontrollberechtigte Person nach NIV Art. 27 [2] mit weiteren Messungen abzuklären.

Je nach Feststellungen müssen folgende Massnahmen ergriffen werden:

  • Weitere Verstärkung des Erdungssystems und des Potenzialausgleichs durch Verbindung aller berührbaren, leitfähigen Teile mit dem Erdungssystem (enge Vermaschung).
  • Einzelne Massnahmen gemäss den Ausführungen in Abschnitt 4.

Achtung: Änderungen an Niederspannungsinstallationen (inkl. Erdungssystem) sind Installationsarbeiten. Um Installationsarbeiten ausführen zu dürfen, ist gemäss Art. 6 NIV [2] eine entsprechende Installationsbewilligung des eidgenössischen Starkstrominspektorats ESTI erforderlich.

Aus Sicherheitsüberlegungen sind folgende Änderungen an der Hausinstallation und Blitzschutzsystemen nicht zulässig:

  • Erdungsauftrennungen, der Einbau von Trennfunkenstrecken
  • die Bildung einer galvanischen Insel

Können die Differenz-Wechselspannungen nicht unter 1 V gehalten werden, ist es zulässig, in bestehenden Installationen (erstellt vor 2015) die Art der Erdverbindung vom System TN zum System TT zu ändern. Wird jedoch das System TT gewählt, muss die gesamte NS-Installation zu 100% mit Fehlerstrom-Schutzeinrichtungen ausgestattet sein.

Aufgrund der bestehenden Erfahrungen können Differenzspannungen jedoch ohne solche Änderungen an der Hausinstallation unter 1 V gehalten werden. Im Falle eines Erdschlusses oder eines Blitzeinschlags können solche Änderungen unter Umständen zu einer zusätzlichen Gefährdung von Mensch und Tier führen und sind deshalb zu vermeiden.

Komponenten eines Erdungssystems in einem Stall.
Komponenten eines Erdungssystems in einem Stall. | Bild: ESTI

Bau neuer Nutztierställe

Um die Differenzspannungen niedrig zu halten, müssen folgende Grundsätze beachtet werden:

  • Als Art der Erdverbindung muss das System TN-S (NIN Ziff. 3.1.2.2.1 [3]) gewählt werden.
  • Das Erdungssystem soll nach NIN [3], SNG 483755 [6], vermascht und mit Fundamenterder nach SNR 464113 [7] ausgeführt werden. Gebäude-Blitzschutzableitungen sind auch daran anzuschliessen.[8]. Es sind ausreichend viele Anschlussstellen für die Erdung von berührbaren, leitfähigen Teilen und von Gehäusen der stationären elektrischen Verbraucheranlagen vorzusehen.
  • Im Standbereich der Nutztiere müssen alle berührbaren und leitfähigen Teile mit der gemeinsamen Erdung und somit mit dem Schutzleiter (PE) verbunden werden (vgl. Zusätzlicher Schutz-Potenzialausgleich ZsPA, NIN Ziff. 7.5.4.1.5.2 [3]). Weiter sollte in diesen Bereichen ein «Erdungsgitter» (Metallgitter in der Standfläche der Tiere) in Betonböden eingelegt werden, welches ebenfalls mit der Erdung verbunden wird.[7]
  • Insbesondere können beim Betrieb von drehzahlgeregelten elektrischen Geräten und Maschinen im Stallbereich zusätzliche Schutzleiter erforderlich sein (NIN Ziff. 5.4.3.7 [3] / SN EN 60204-1 Ziff. 8.2.8 [8]). Damit wird verhindert, dass auch im Frequenzbereich der entstehenden Oberschwingungen keine abgreifbaren Differenzspannungen über 1  V entstehen können. In Betracht fallen hier vor allem Frequenzumrichter, geregelte Antriebe für Melkanlagen, Vakuumpumpen, Fütterungs- und Förderungsanlagen, Gebläse, Pumpen, Photovoltaikanlagen sowie Lüftungs- und Klimaanlagen.
  • Eine Verbindung zwischen dem PEN-Leiter (bzw. Erdungsleiter) der Anschlussleitung und dem Erdungssystem soll nur an einer Stelle vorgesehen werden (zentraler Erdungspunkt ZEP). Diese Verbindung wird in der Regel beim Hauptverteiler nach der Gebäudeeinführung (NIN Ziff. 4.4.4.4.6.2 [3]) gemacht. Der Hauptverteiler soll an der Peripherie, ausserhalb des Aufenthaltsbereichs der Nutztiere, angeordnet werden.
  • Bei hohen Erdausgleichsströmen zwischen der Stallerdung und dem Erdungssystem einer benachbarten Starkstromanlage, die zu Differenz-Wechselspannungen über 1  V im Aussenbereich des Nutztierstalls führen kann (z.B. an metallischen Abschrankungen, Toren, Tränken), müssen vom Betriebsinhaber der Drittanlage weitere geeignete Massnahmen zum Potenzialausgleich bzw. Verhinderung der Differenzspannungen getroffen werden.
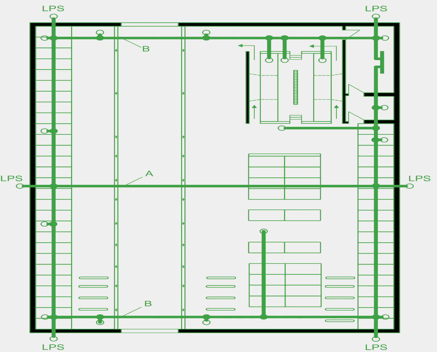
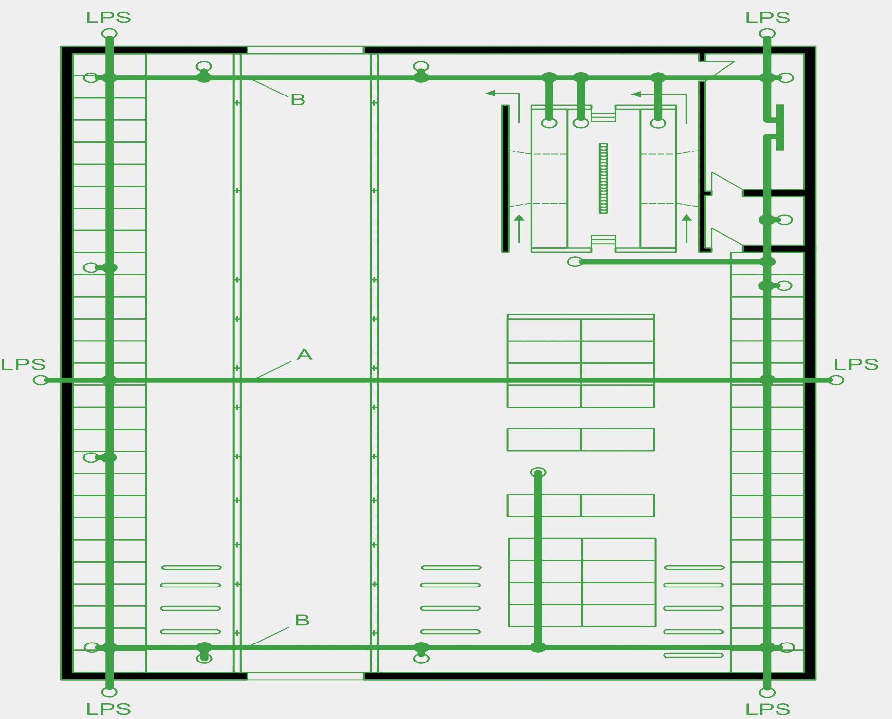
Erdungssystem in einem Stall. A: Verbindung bei Ställen, die über 15 m lang sind, B:  ringförmig angeordneter Fundamenterder, LPS: Anschlussstelle für Blitzschutzsystem (Lightning Protection System).
Erdungssystem in einem Stall. A: Verbindung bei Ställen, die über 15 m lang sind, B:  ringförmig angeordneter Fundamenterder, LPS: Anschlussstelle für Blitzschutzsystem (Lightning Protection System). | Bild: ESTI

Referenzen

[1] Differenzspannungen/Streuströme in landwirtschaftlichen Tierhaltungsbetrieben, Bedeutung, Erläuterungen und Beurteilung; Technisches Komitee Erdungen des CES, (im selben Heft, Bulletin SEV/VSE 12/2018; S. 71).

[2] SR 734.27, Verordnung über elektrische Niederspannungsinstallationen (NIV).

[3] SN 411000:2015, Niederspannungs-Installationsnorm NIN.

[4] SR 734.2 Verordnung über elektrische Starkstromanlagen (Starkstromverordnung) vom 30. März 1994.

[5] SNG 483755 (SN Guideline); «Erden als Schutzmassnahme in elektrischen Starkstromanlagen, Erläuterungen zu den Artikeln 53 – 61 der Starkstromverordnung SR 734.2», CES TK Erdungen, Arbeitsgruppe 3755, Juni 2015.

[6] SNR 464113, «Regeln des CES Fundamenterder», 2015.

[7] SNR 464022. «Regeln des CES Blitzschutzsysteme», 2016.

[8] SN EN 60204-1:2006 «Sicherheit von Maschinen – Elektrische Ausrüstung von Maschinen – Teil 1: Allgemeine Anforderungen».

[9] IEEE Std 1695 – 2016 «IEEE Guide to understanding, -diagnosing, and mitigating stray and contact voltages».

[10] Streuspannungsadapter.

Downloads

  • H_1902_ESTI_I_Correnti_vaganti (PDF)
  • H_1812_ESTI_D_Streustroeme (PDF)

Das könnte Sie auch interessieren

Mehr Elektronik aufs Solardach?
30.09.2025 Prof. Dr. Franz Baumgartner

Mehr Elektronik aufs Solardach?

Pro und Contra PV-Optimierer

Die Effizienz der Pumpspeicherung
18.09.2025 Prof. Michael Höckel

Die Effizienz der Pumpspeicherung

Wirkungsgradanalyse.

Anzeige
Veranstaltungen
Fachtagung Kleinwasserkraft
22. Mai 2026 – Thun
Fachtagung Netzanschluss
2. Juni 2026 – Burgdorf und online
Ladeinfrastruktur im Unternehmen realisieren
2. Juni 2026 – Online-Webinar
Powertage
16. bis 18. Juni 2026 – Zürich
Fachtreffen Flotte elektrifizieren
5. Mai 2026 – Online-Webinar
Advertorials
  • Datenschutz
  • Impressum
Suche
Themen
Fachartikel Interview News Meinung Alle sehen
Fachartikel Interview News Meinung Alle sehen
Fachartikel Interview News Meinung Alle sehen
Fachartikel Interview News Meinung Alle sehen
Fachartikel Interview News Meinung Alle sehen
Fachartikel Interview News Meinung Alle sehen
Fachartikel Interview News CES Meinung Alle sehen
Vorschau Rückschau Alle sehen
Marktplatz
Über Bulletin.ch
Inserieren eArchiv Abonnieren Kontakt
Français