Les courants vagabonds dans les exploitations d’élevage
Prévention des tensions différentielles perturbatrices dans les étables
Ce communiqué décrit comment il est possible d’éviter l’apparition de tensions différentielles grâce à des installations effectuées de manière correcte et professionnelle. Il présente également les mesures à prendre dans les exploitations d’élevage, qu’elles soient nouvelles ou existantes, lorsque des tensions différentielles perturbatrices sont détectées.
Les animaux d’élevage, comme les bovins et les moutons, peuvent être exposés à des tensions différentielles lors du contact de leur museau avec des pièces métalliques. [1] À partir d’une tension alternative différentielle de 1 V ou d’environ 1,4 V dans le cas d’une tension continue, des courants corporels de 1 à 2 mA peuvent apparaître et être aussi ressentis par les animaux. La plupart du temps, ces derniers perçoivent cette tension entre des installations conductrices comme les mangeoires, les abreuvoirs, les machines à traire et les sols en béton directement avec des parties de leur corps. Les bovins, par exemple, touchent les installations métalliques avec leur museau alors qu’ils se tiennent debout avec les sabots sur le sol conducteur mouillé de l’étable ou de la salle de traite.
De nombreuses études ont démontré que des tensions alternatives différentielles inférieures à 1 V ne provoquaient pas de troubles chez les animaux d’élevage. [1]
Les animaux ne peuvent pas percevoir les courants vagabonds qui circulent dans les conducteurs de protection ou de terre ainsi que dans les pièces conductrices. De même, ces courants vagabonds n’expliquent pas à eux seuls des troubles de la santé.
Les tensions différentielles ne peuvent atteindre que des valeurs de quelques millivolts lorsque la liaison équipotentielle est conçue correctement et installée conformément à la NIBT [3]. Dans un système de mise à la terre réalisé correctement, les courants vagabonds circulent principalement dans les conducteurs métalliques, par exemple dans les armatures en acier connectées. Des tensions alternatives différentielles de l’ordre du volt surviennent uniquement en cas de défaut à la terre ou en cas de liaison équipotentielle manquante, interrompue ou insuffisante.
Des tensions alternatives différentielles supérieures à 1 V peuvent être détectées, conformément à la norme EN 61010, à l’aide d’un multimètre à faible impédance. La procédure est décrite dans [1] (voir également [9], [10]).
Règles générales
Pour la sécurité des personnes et des animaux, il est tout d’abord indispensable de contrôler les installations périodiquement et systématiquement après des rénovations ou modifications des installations à basse tension, et ce, conformément à la NIBT [3]. Ce faisant, la mise à la terre et l’efficacité de la liaison équipotentielle doivent également être contrôlées. La vérification de la sécurité au moyen d’un certificat de sécurité est exigée dans les articles 35 + 36 OIBT [2].
Le paragraphe 7.05 de la NIBT [3] indique les exigences fondamentales relatives aux installations pour les «Exploitations agricoles».
Mesures correctives
En cas de doute quant à un défaut d’installation ou en cas de tensions alternatives différentielles supérieures à 1 V pouvant être perçues par les animaux, il faut dans un premier temps contrôler si l’installation a été réalisée et contrôlée conformément au paragraphe 2 des normes citées (prescriptions) (OIBT [2] et NIBT [3]). En outre, un contrôle de l’installation doit être organisé, à l’occasion duquel une mesure de la mise à la terre et un contrôle de l’efficacité de la liaison équipotentielle dans la zone où séjournent les animaux doivent être effectués.
Une liste des détenteurs d’une autorisation d’installation et de contrôle peut être consultée sur:
verzeichnisse.esti.ch/fr/aikb.
Si toutes les installations ont été effectuées conformément aux normes et si le contrôle ne donne pas de résultats univoques, une personne autorisée pour le contrôle selon l’art. 27 OIBT [2] devra réaliser des mesures supplémentaires pour trouver l’origine du problème.
En fonction des résultats, les mesures suivantes doivent être prises:
- Renforcement supplémentaire du système de mise à la terre et de la liaison équipotentielle par la connexion de toutes les pièces conductrices susceptibles d’être touchées avec le système de mise à la terre (maillage étroit).
- Mesures individuelles conformément au paragraphe 4:
Attention: les modifications sur des installations à basse tension (y compris sur le système de mise à la terre) sont des travaux d’installation. Or, l’art. 6 OIBT [2] stipule que les travaux d’installation nécessitent une autorisation d’installation de l’Inspection fédérale des installations à courant fort (ESTI).
Pour des raisons de sécurité, les modifications suivantes de l’installation domestique et des systèmes de protection contre la foudre ne sont pas autorisées:
- séparations de la mise à la terre, montage d’éclateurs d’isolement;
- la formation d’un îlot galvanique.
Si les tensions alternatives différentielles ne peuvent pas être maintenues à une valeur inférieure à 1 V, il est permis de changer le type de connexion à la terre du schéma TN au schéma TT dans les installations existantes (réalisées avant 2015). Si toutefois le schéma TT est choisi, l’installation BT complète doit être équipée à 100% de disjoncteurs différentiels à courant résiduel.
Sur la base des expériences acquises, les tensions différentielles peuvent toutefois être maintenues à un niveau inférieur à 1 V sans procéder à de telles modifications de l’installation du bâtiment. En cas de défaut à la terre ou d’impact de la foudre, ces modifications peuvent, dans certaines circonstances, représenter un risque supplémentaire pour l’homme et les animaux et doivent donc être évitées.
Construction de nouvelles étables
Afin de maintenir les tensions différentielles à un niveau bas, les principes suivants doivent être respectés:
- Le schéma TN-S (NIBT al. 3.1.2.2.1 [3]) doit être choisi comme type de connexion à la terre.
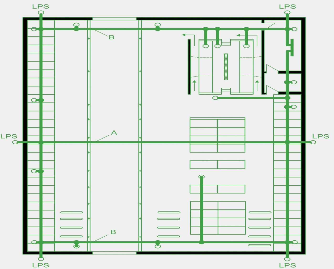
- Le système de mise à la terre doit être maillé selon la NIBT [3], la SNG 483755 [6], et équipé d’une terre de fondation selon la SNR 464113 [7]. Les dispositifs de protection contre la foudre du bâtiment doivent aussi y être raccordés. [8] Un nombre suffisant de points de raccordement pour la mise à la terre des éléments conducteurs susceptibles d’être touchés et des boîtiers des installations de consommation électrique fixes du bâtiment doit être prévu.
- Dans la zone où se trouvent les animaux d’élevage, tous les éléments conducteurs et susceptibles d’être touchés doivent être raccordés à la mise à la terre commune et ainsi au conducteur de protection (PE), (cf. liaison équipotentielle de protection supplémentaire, NIBT al. 7.05.4.1.5.2 [3]). En outre, dans ces zones, une «grille de mise à la terre» devrait également être insérée dans les sols en béton (grille métallique sur l’ensemble de la surface sur laquelle se tiennent les animaux). Cette dernière doit également être liée à la terre. [7]
- Des conducteurs de protection supplémentaires peuvent s’avérer nécessaires, notamment lors de l’utilisation dans l’étable d’appareils et de machines électriques à régime variable (NIBT al. 5.4.3.7 [3] / SN EN 60204-1 al. 8.2.8 [8]). Ils permettent d’empêcher l’apparition de tensions différentielles perceptibles supérieures à 1 V également dans le domaine de fréquence des harmoniques produites. Sont considérés ici particulièrement les convertisseurs de fréquence, les entraînements contrôlés des installations de traite, les pompes à vide, les installations destinées à l’alimentation des animaux et au transport, les soufflantes, les pompes, les installations photovoltaïques ainsi que les systèmes de ventilation et de climatisation.
- Une connexion entre le conducteur PEN (resp. le conducteur de terre) du câble de raccordement et le système de mise à la terre ne doit être prévue qu’en un seul point (point central de mise à la terre). En règle générale, cette liaison est réalisée au niveau du tableau principal après l’entrée du bâtiment (NIBT al. 4.4.4.4.6.2 [3]). Le tableau principal doit être disposé en périphérie, en dehors de la zone où séjournent les animaux d’élevage.
- En présence de courants de compensation de terre élevés entre la mise à terre de l’étable et le système de mise à la terre d’une installation à courant fort avoisinante susceptibles de provoquer des tensions alternatives différentielles supérieures à 1 V à l’extérieur de l’étable (par ex. sur les barrières, les portails ou les abreuvoirs métalliques), l’exploitant de l’installation tierce doit prendre des mesures adaptées supplémentaires en ce qui concerne la liaison équipotentielle, resp. pour éviter les tensions différentielles.